
KRONGAARD
- Ort
- Frankfurt/M
- Bauvorhaben
- Ausführungsplanung
- Auftraggeber
- KRONGAARD / CAImmo AG
- BGF
- ca. 730 qm
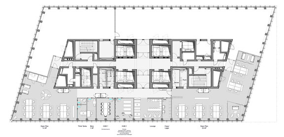
Für die international aufgestellte Beraterfirma KRONGAARD wurde am Standort Frankfurt eine Fläche von 730 qm im ONE ausgebaut.
Beim Ausbau wurde besonderer Wert wurde auf Kommunikation und Flexibilität gelegt. Neben den bekannten workplace Szenarien von open space bis Zellenbüro wurden auch Angebote für Fitness und Entspannung in das Ausbaukonzept integriert.


„Die zahlreichen inhouse Angebote von der Shared Lobby über das integrierte Coworking bis hin zur Skybar machen das Gebäude – davon sind wir überzeugt – insbesondere für unsere Mitarbeiter zu einem sehr attraktiven Ort, zu dem man gerne kommt.“ Alexander Heidemann, Area Manager Frankfurt bei KRONGAARD

