
Technisches Verwaltungsgebäude Düsseldorf
- Ort
- Düsseldorf
- Bauvorhaben
- Neubau eines technischen Verwaltungsgebäudes - Hochhaus 110m
- Zeitraum
- 2021 - 2022
- Auftraggeber
- Stadt Düsseldorf
- BGF
- 90.792qm
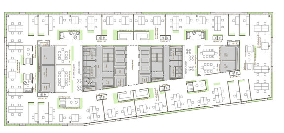
Unser Konzept für das das technische Rathaus der Stadt Düsseldorf am IHZ-Park sieht ein nahezu energetisch autarkes Gebäude vor. Mit Bedacht wurde eine kompakte Baufigur für das 110m hohe Gebäude gewählt, das sich aus einem Sockelbau mit 7 Geschossen entwickelt. Seine beiden Eingänge verbinden die unterschiedlichen stadträumlichen Niveaus der Moskauer Strasse und des IHZ Parks miteinander.
Die Fassade besteht zu 100% aus glatten PV Modulen, die so eine autarke Energieversorgung des Gebäudes ermöglichen. Um die Transmissionswärmeverluste zu verringern wurden hochgedämmte Brüstungen vorgesehen. Einfach zu pflegende Begrünungen der opaken Brüstungen sorgen für ein optimiertes Mikroklima.
Weitere Mitglieder des Generalplanerteams:
B+G Ingenieure – Bollinger+Grohmann GmbH
NeherButz+ Ingenieure GmbH
Transplan Technik Bauplanung GmbH
Visualisierungen: Nightnurse






